Ob Sanierung, Bewertung, Verkauf oder Vermietung – wir begleiten Sie zuverlässig und professionell. Kontaktieren Sie uns für eine unverbindliche Beratung und profitieren Sie von unserer Erfahrung und Effizienz.
Mehrfamilienhaus mit Potenzial in zentraler Lage von Essen
Objektbeschreibung
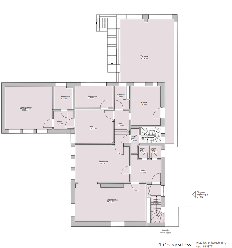
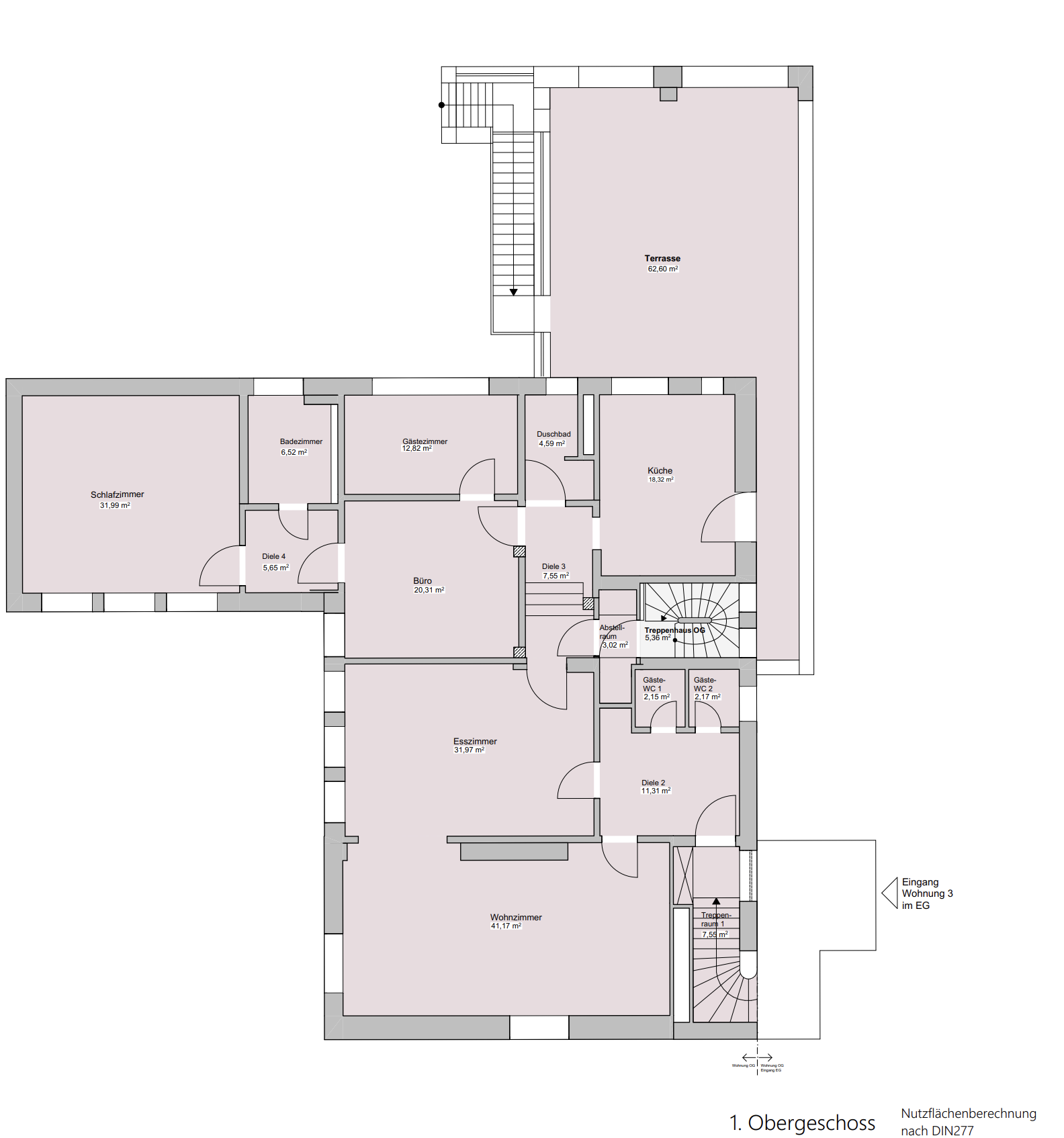
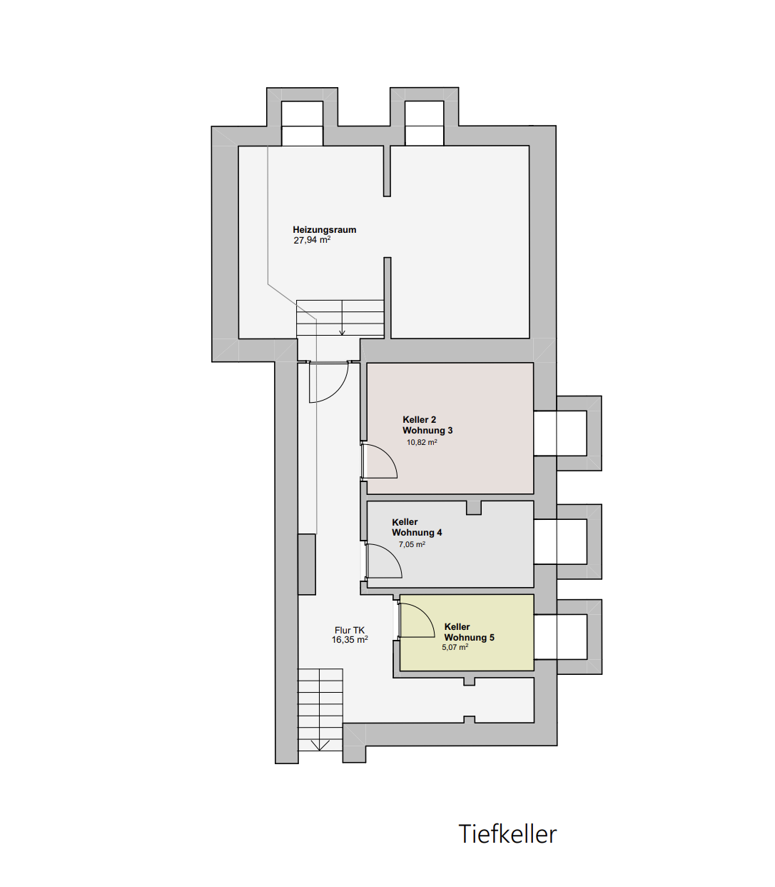
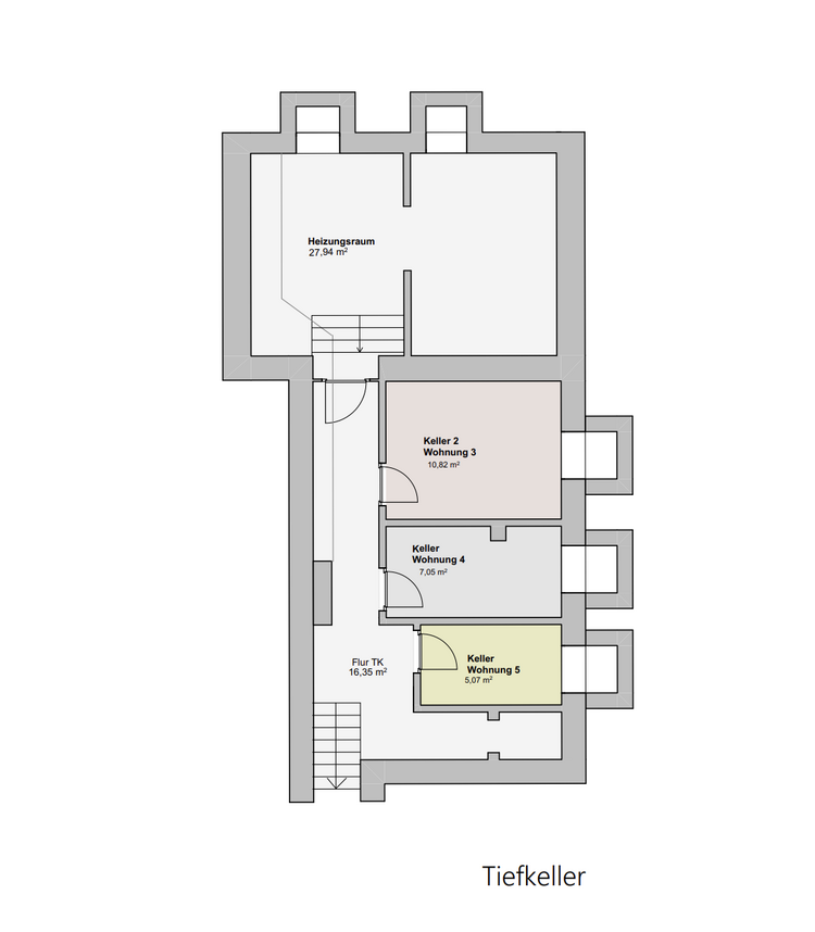
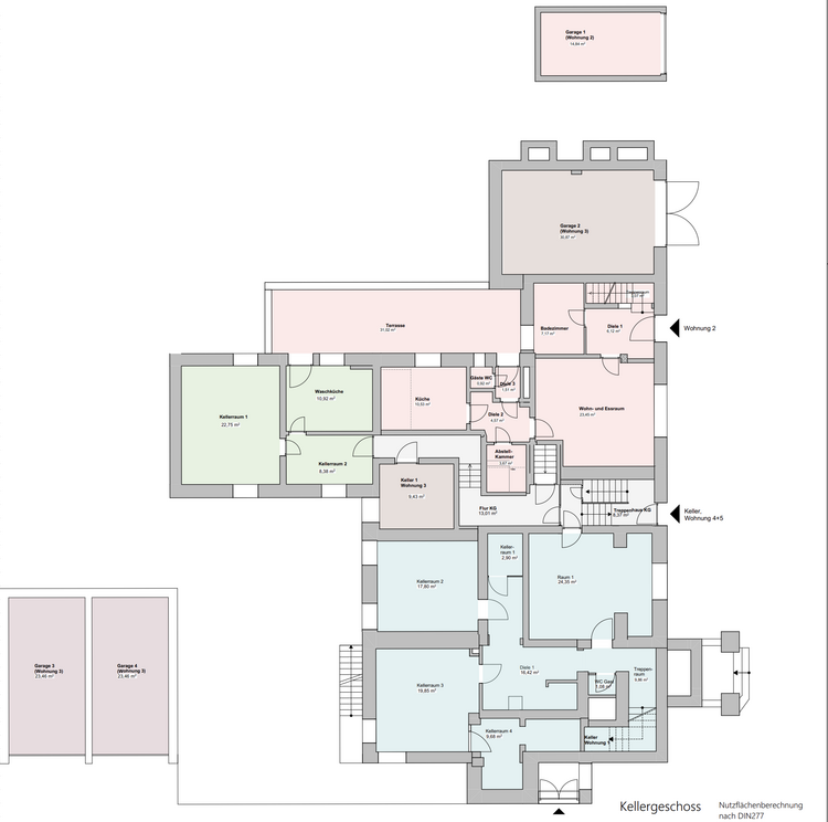
- Attraktives Renditeobjekt mit insgesamt vier großzügigen Wohneinheiten sowie einer Büroeinheit im Erdgeschoss - Gesamtfläche der Wohneinheiten liegt bei ca. 830 m², verteilt auf drei Etagen - Das Grundstück erstreckt sich über ca. 1.394 m² mit großzügigem Außenbereich - Vielfältige Nutzungsmöglichkeiten durch Wohnraum für Familien und Paare, kombiniert mit einer potenziell ertragsstarken Gewerbeeinheit - Die Immobilie befindet sich derzeit in einem sanierungsbedürftigen Zustand, bietet Investoren jedoch enormes Aufwertungspotenzial - Die einzelnen Wohneinheiten befinden sich in einem sehr gutem Zustand dank regelmäßiger Renovierungen und laufender Pflege - Garage und zusätzlicher Außenstellplatz sorgen für komfortable Parkmöglichkeiten - Praktische Kellerräume bieten zusätzlichen Stauraum für Mieter oder Betreiber - Das Gebäude steht unter Denkmalschutz, das bietet eine seltene Gelegenheit für Liebhaber historischer Bausubstanz und steuerlich begünstigte Sanierungen - Eine Gas-Zentralheizung arbeitet effizient, wirtschaftlich und zukunftssicher - Aktuelle Ist-Mieteinnahmen (nur Wohneinheiten): ca. 45.000 € p. a. - Die Büroeinheit im Erdgeschoss ist derzeit leerstehend – sie bietet nach einer gezielten Modernisierung weiteres Einnahmepotenzial - Die Bürofläche wurde vormals für eine monatliche Kaltmiete von ca. 2.000 € vermietet – dies entspricht einem zusätzlichen jährlichen Potenzial von 24.000 € - Vollvermietet ergibt sich ein realistisches Mietpotenzial von ca. 69.000 € p. a. - Bei entsprechender Modernisierung, sowie Mietensteigerung liegen die Soll-Mieteinnahmen bei ca. 90.000 € p.a.Ausstattung
- - Gas-Heizung
- - Vier Wohneinheiten
- - Eine Gewerbeeinheit
- - Balkone
- - Kellerräume
- - Garage
Lagebeschreibung
Die Lage punktet mit einer stabilen Mietnachfrage und langfristig sicheren Erträgen. Zwei große Kliniken im Stadtteil, das Huyssens-Stift und das Elisabeth-Krankenhaus, fungieren als bedeutende Arbeitgeber im direkten Umkreis und sorgen ebenso wie die Innenstadt- und Uni-Nähe für eine stetige Nachfrage nach Wohnraum bei vielfältigen Mieterzielgruppen. Zusätzlich haben namhafte Unternehmen wie die Zentrale von E.ON Ruhrgas ihren Sitz in Huttrop, was die wirtschaftliche Attraktivität der Gegend weiter erhöht. Entsprechend verzeichnet Huttrop seit Jahren einen Aufwärtstrend: Die Lageattraktivität (Innenstadtnähe, ÖPNV, umfangreiche Versorgung vor Ort) hat in den vergangenen Jahren zu einer deutlich steigenden Nachfrage geführt. Infolge dessen sind die Mietpreise hier kontinuierlich gewachsen – Vermieter konnten bei Neuvermietungen die höheren Gebote am Markt realisieren. Diese Entwicklung unterstreicht das Wertsteigerungspotenzial des Quartiers. Zudem investiert auch die Stadt in die Zukunft, so wird derzeit das ehemalige Bundesbankgebäude vor Ort für rund 46 Mio. € zu einer neuen vierzügigen Grundschule umgebaut – ein kräftiges Signal für die positive Standortentwicklung und ein Vorteil für Familien im Viertel. Zusammengefasst bietet Huttrop alle Standortvorteile, die sich Kapitalanleger von einer Wohnimmobilie wünschen: zentrale und dennoch grüne Lage, hervorragende Infrastruktur, zukunftsfähige Entwicklungsperspektiven und ein Umfeld mit nachhaltig hoher Mietenachfrage.Jetzt Kontakt aufnehmen.
Ähnliche Immobilien
Alsterland Immobilien
18347 Ahrenshoop
Ihr Neustart am Meer – Reetdachidylle in Ahrenshoop mit laufendem Hotelbetrieb
18347 Ahrenshoop
Selbsttragendes Fastenhotel an der Ostsee – Rückzugsort für Aussteiger & Gesundheitskonzepte
23843 Neritz
Attraktive Kapitalanlage mit starker Rendite in Neritz
23843 Neritz
Attraktive Kapitalanlage mit starker Rendite in Neritz
23730 Bliesdorf
Küstencharme trifft Gemütlichkeit – Ihr Mehrfamilienhaus mit Ostsee-Flair
23730 Bliesdorf
Küstencharme trifft Gemütlichkeit – Ihr Mehrfamilienhaus mit Ostsee-Flair
24534 Neumünster
Sanierte 3-Zimmer-Wohnung in Neumünster – Ideal für Eigennutzer oder zur Vermietung
49457 Drebber